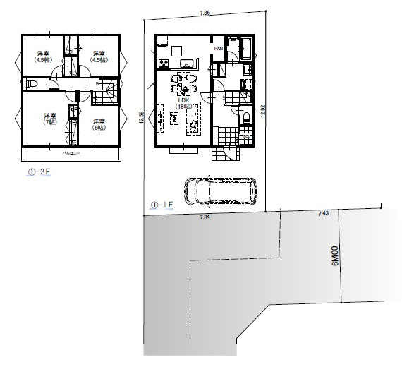
【土地図+建物プラン例】NO1 敷地面積104.41㎡ 建物面積90.72㎡ 土地建物価格8390万円 土地価格6790万円
- 物件名
- 練馬区田柄3丁目 建築条件付き土地 全2区画
- 価格
- 6,590万円
- 土地面積
- 104.41㎡
- 築年月
- -(-)
- 総区画数
- -
- 設備条件
-
- 閑静な住宅地
- 設備(その他)
-
-
-
- 駐車場/月額
- -/-
- 土地権利
- 所有権
- 国土法届出
- 不要
- 用途地域
- 第一種低層住居専用
- 区画数
- - / -
- 管理形態
- -
- 管理員の勤務形態
- -
- 管理会社
- -
- 取引態様
- 仲介
- 引渡し
- 相談
- 備考
- 住まいのことならエバー・ハウジングにお任せください。
販売実績豊富にございます。
お客様に満足いただける対応、住まいをご提供致します。
新築、中古、マンション、土地、リフォームまであらゆる住まいのことなんでもご相談ください。
お客様の御要望に沿えるよう、たくさんの物件の中からお客様の為だけの住まいをお探し致します。
親切丁寧に対応させていただきます。
-
コンビニエンスストア
練馬区田柄3丁目店セブンイレブン
226m(3分)
-
スーパー
マルエツ田柄店
241m(4分)
-
小学校
練馬区立光が丘秋の陽小学校
594m(8分)
-
公園
練馬区立けやき児童公園
821m(11分)
-
中学校
練馬区立光が丘第三中学校
881m(12分)
-
その他
パンふじた
892m(12分)
-
保育園
どんぐり山保育園
934m(12分)
-
総合病院
練馬光が丘病院
1119m(14分)
-
スーパー
リヴィン光が丘店
1158m(15分)
-
その他
春日町バッティングセンター
1257m(16分)
-
公園
光が丘公園
1364m(18分)
練馬区田柄3丁目 建築条件付き土地 全2区画の基本情報
練馬区田柄3丁目 建築条件付き土地 全2区画の詳細情報
練馬区田柄3丁目 建築条件付き土地 全2区画のコメント(おすすめポイント)
お客様とご一緒に、理想の住まい探しさせて頂き、
お客様に喜んで頂けることがとても嬉しく思います。
これからもたくさんの方々に喜んでもらえる住まい探しのサポートを全力でさせて頂きたい。
ご不明な点等ございましたらエバーハウジングまでお問い合わせください。
練馬区田柄3丁目 建築条件付き土地 全2区画で募集中の物件
周辺施設
練馬区田柄3丁目 建築条件付き土地 全2区画




